010 - 88125588

智能消防应急照明和疏散指示系统

首页 / 智能消防应急照明和疏散指示系统

联系方式 / Contact

北京航天常兴科技发展股份有限公司

地址:北京市大兴区金星路 30 号

邮编:102600

邮箱:htcx@htcxcloud.com

电话:010-88125588

           010-88121515

           010-69297973

传真:010-88125588​ 转 833

售前:010-88121515 转 828

售后:010-88125588 转 808

询价:010-88125588 转 834

电气安全服务专线:400-968-0119

智能消防应急照明与疏散指示系统

来源:本站 时间:2024/3/12 971

智能消防应急疏散指示系统

第一节 智能消防应急照明和疏散指示系统简介

      智能消防应急照明和疏散指示系统,应用于大型建筑内的火灾应急照明及疏散指示。火灾发生时,疏散照明指示系统根据控制器指令,对危险地域的灯具指示自动进行调整,提供一条清晰的最佳逃生指示通道,为人员的有效疏散和消防作业提供照明指示,以确保建筑物内人员的生命安全。

 

       设备融合多项先进技术,并按照国标的规格要求进行设计。系统集中了多款消防应急照明灯具、消防应急标志灯具、集中供电电源及控制器等设备,是大容量的智能型应急疏散指示系统。系统可广泛应用于工业与民用建筑,如工厂、机场、地铁、学校、医院、商场、宾馆、剧院、展厅、办公楼等各种人员密集场所的火灾应急照明和疏散指示。

 

第二节 系统组成

       系统产品由应急照明控制器、消防应急灯具专用应急电源、应急照明分配电装置、消防应急照明、消防应急标志灯具四部分组成。照明灯具指示系统有壁挂式、吸顶式、嵌顶式等,标志灯具指示系统有壁挂式、吊挂式、嵌墙式、嵌地式等组成。

       小型的消防应急照明和疏散指示基础系统使用一台消防应急灯具专用应急电源,一台集中电源可带1-4台应急照明分配电装置。一台集中电源经应急照明分配电装置最多可带508台标志灯具或照明灯具,且灯具总功率不超过500W.

       对于大型建筑或者群楼组成的超大建筑,在不同的区域可以设置多个消防应急灯具专用应急电源,一个区域使用一台消防应急灯具专用应急电源,集中电源与1-4台应急照明分配电装置及所带灯具构成一个子系统。多个子系统与应急照明控制器构成消防应急照明和疏散指示系统。平时,系统自动指示行走方向并自动检测灯具、集中电源等的故障情况,如有故障,故障信号上传至应急照明控制器,在应急状态下,应急照明控制器根据火灾报警系统的报警信号结合预定应急疏散预案,计算出最佳疏散路线,并将控制器指令发往各个消防应急灯具专用应急电源及相关灯具,使其做出相应的变化,如点亮应急照明灯具、转换标志灯具指示方向等。消防应急照明和疏散指示系统如下图所示:

大型建筑智能消防应急照明和疏散指示系统组成图

第三节 应急标志灯具类产品

 

应急标志灯具产品规格型号表示方法

■ 吊挂型玻璃面板标志灯具

 

吊挂型铝合金面板标志灯具

 

 

壁挂型铝合金面板标志灯具

 

 

嵌地式圆型标志灯具

 

 

嵌地式矩形标志灯具

 

 

■嵌墙型铝合金标志灯具

 

 

应急标志类灯具汇总表

 

 

第四节 应急照明灯具类产品

吸、嵌顶式应急照明灯具

 

应急照明类灯具规格型号表示方法

 

 

双头式应急照明灯具

 

第五节 应急照明分配电装置

AC-FP-36V/36V应急照明分配电装置

 

应急照明分配电装置规格型号表示方法

外型尺寸及功能

内部接线图

 

 

AC-FP-36V-1.3KVA-D应急照明分配电装置

 

 

第六节 消防应急灯具专用应急电源

 

 AC-D-0.5KVA/1KVA消防应急灯具专用电源

AC-D-0.5KVA/1KVA应急电源

 

 消防应急灯具专用应急电源规格型号表示方法

 

 

   ■ AC-D-0.5KVA/1KVA消防应急灯具专用电源外型尺寸、功能及内部接线图

 

 AC-D-2KVA消防应急灯具专用电源

● AC-D-3KVA消防应急灯具专用电源

 

● AC-D-5KVA消防应急灯具专用电源

 

 

 AC-D-8KVA消防应急灯具专用电源

 

第七节 AC-C-1000-G应急照明控制器

应急照明控制器规格型号表示方法

 

■ AC-C-1000-G应急照明控制器外形尺寸及功能

 

第八节 智能疏散指示系统技术说明

 

 

第九节 产品型号代码

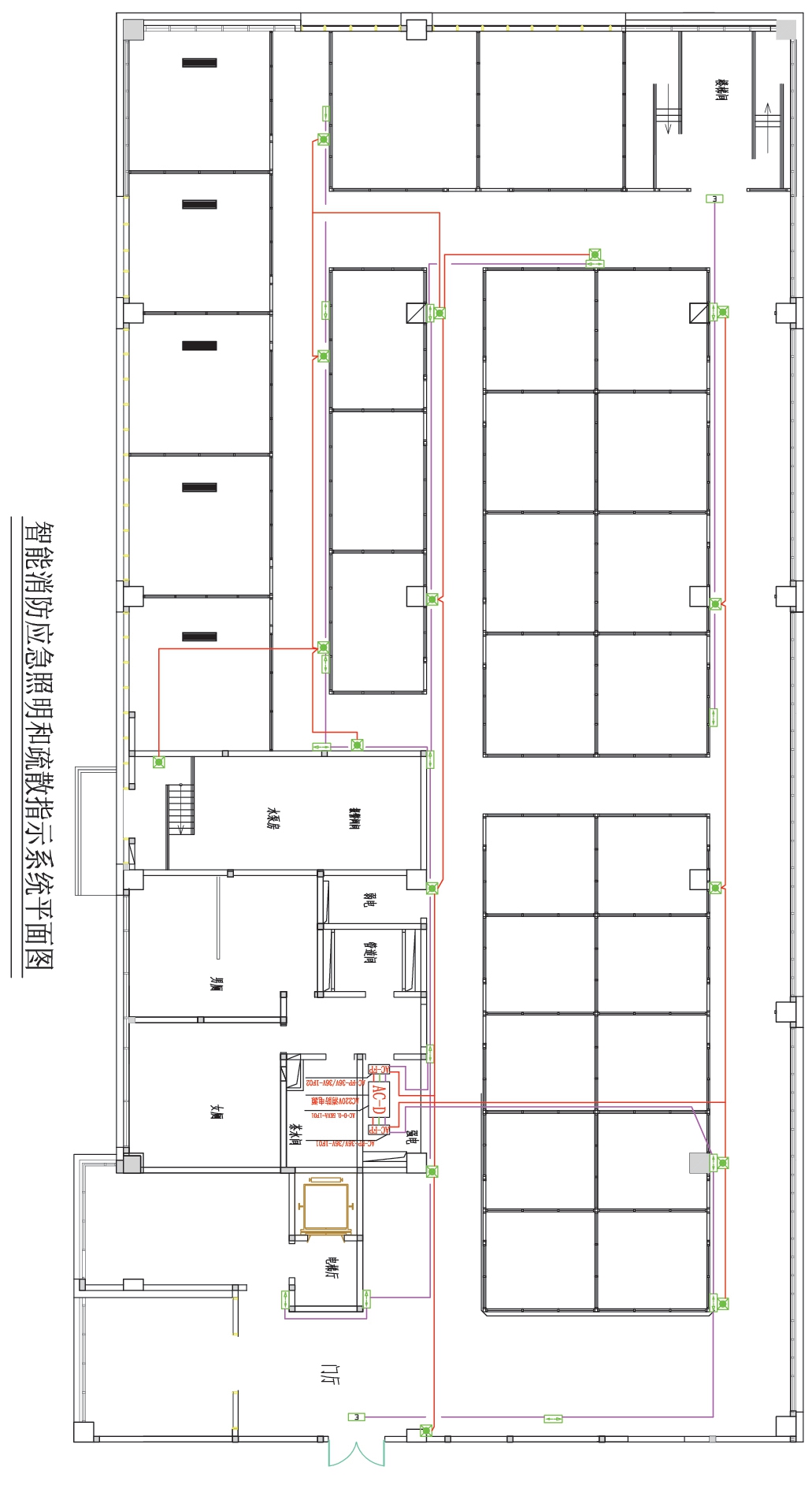
C.3 智能消防应急照明和疏散指示系统平面图

C.4 智能消防应急照明和疏散指示系统说明图

  C.5 智能消防应急照明和疏散指示系统设计图形符号




微信 微信
抖音 抖音
 
Copyright © 2001-2025 北京航天常兴科技发展股份有限公司 All Right Reserved. www.htcxcloud.com
电气火灾监控系统 | 智能疏散指示系统 | 漏电探测器 | 剩余电流探测器 | e火控系列 | DT-200 T201LW T204L T204W J80 | 航天常兴  网站地图
建议使用Chrome、Firefox、Edge、IE10及以上版本和360等主流浏览器浏览本网站